2701 Rosemount Cove
Round Rock, TX 78665

Scroll to Content

Details

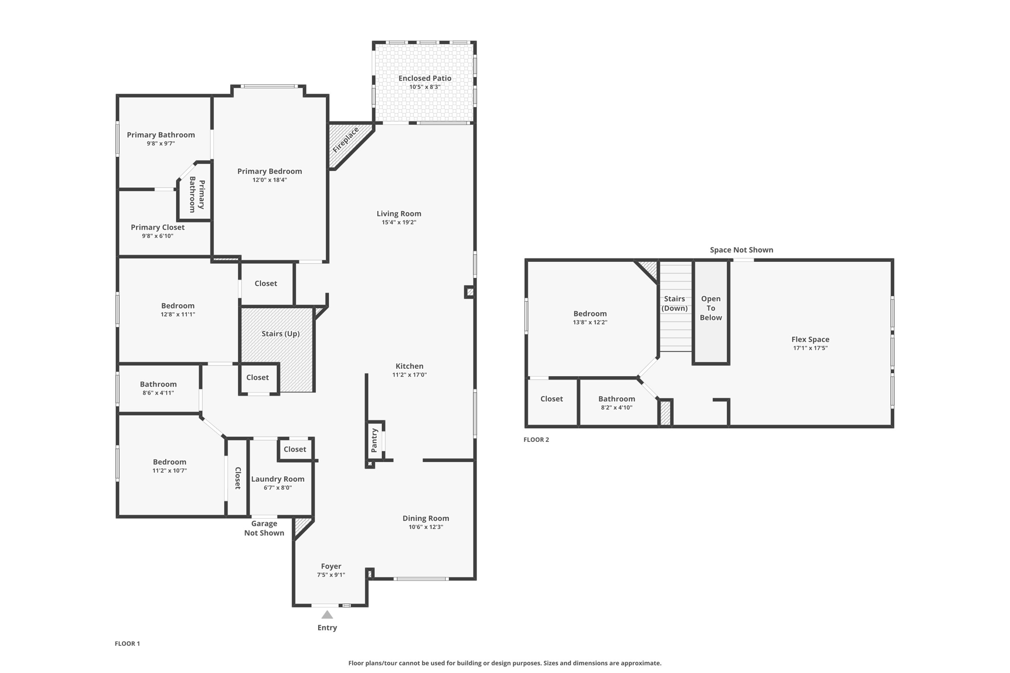
You know that feeling when you walk into a home and think, "This is it"? That’s exactly what you’ll experience when you step into this Sonoma charmer. Positioned on a corner lot in a peaceful cul-de-sac, this home offers more than just great curb appeal, it offers an easy, relaxed lifestyle. The moment you walk inside, it’s clear this isn’t like every other house in the neighborhood. The living room invites you in with natural light pouring through large windows and a cozy fireplace ready to set the tone for any gathering. It flows into a kitchen that’s not just functional but fun to use, with quartz countertops, stainless appliances, and a wrap around breakfast bar that’s perfect for grabbing a bite or chatting with friends while you cook. The two dining spaces give you plenty of options, from casual meals to special occasions. The primary suite on the main floor is its own private escape. Tucked away for peace and quiet, it offers space for a sitting area or office space and is big enough to stretch out and truly relax. Two additional bedrooms downstairs mean there’s plenty of room for everyone. Head upstairs and you’ll find a loft that could easily transform into whatever you need: a playroom, a media room, a home gym, or just a spot to escape with a good book. The fourth bedroom and full bath upstairs provide even more space, making this a perfect home for in-laws, guests, or whatever your life requires. Now, the backyard, this is where you’ll want to spend your time. A mature tree shades the entire space, and the screened-in patio offers the perfect place to unwind after a long day. Whether you’re hosting a barbecue or enjoying a quiet evening with a glass of wine, this backyard has the flexibility to make it work for you. The location doesn't get much better! You’re just down the street from the community pool and pond, and only a couple of blocks from the Brushy Creek greenbelt. Plus, top-rated schools, shopping, and entertainment are all just minutes away.

  • 4 Bedrooms
  • 3 Bathrooms
  • 2,786 Sq/ft
  • Lot 0.29 Acres
  • Built in 2008
  • MLS: 3389335

Images

Floor Plans

3D Tour